Теплица из поликарбоната своими руками
Теплицы и другие конструкции с применением поликарбоната в нынешнее время пользуются большим спросом среди садовников и владельцев загородных построек. Поликарбонат является бюджетным материалом, который имеет много преимуществ.
По этой причине теплица из поликарбоната для большинства является отличным выбором, к тому же построить своими руками её несложно.
Достоинства и недостатки поликарбоната
Как и любой материал, применяемый в строительных и отделочных работах, поликарбонат не является идеальным. Он имеет свои достоинства и недостатки. Однако достоинств намного больше.
Целесообразно сравнивать поликарбонат с материалами, которые он заменяет в строительстве. Его можно сравнить с пластмассой, стеклом и металлом.
К достоинствам материала можно отнести:
- Огнестойкость. Материал не поддерживает горение, а плавящиеся участки быстро затухают.
- Прочность. Приблизительно в 15 раз выше, чем у стекла.
- Гибкость.
- Высокие теплоизоляционные параметры. Достигается это благодаря закрытым ячейкам, которые наполнены воздухом.
- Широкая цветовая гамма. Это могут как обычные цвета, так и дорогие металлики. Цвет материала неизменен по всей толщине, соответственно, поликарбонат не выцветет со временем.
- Материал не боится влаги.
- Стойкость к перепадам температуры.
- Поликарбонат не подвергается коррозии.
- Небольшой вес.
Основные недостатки материала:
- Недостаточная абразивная стойкость. Поликарбонат легко поцарапать, однако небольшие царапины практически незаметны на листах.
- Разрушение под воздействием солнечных лучей. Эту проблему можно решить путём монтажа специальной плёнки, которая способна защитить материал от лучей солнца.
- Интенсивность расширения при перепадах температур. Материал может сужаться или расширяться. Это может повлечь за собой сложности в процессе установки. Однако если выполнить монтаж правильно, то проблем возникнуть не должно.
Поликарбонат отлично справляется с ветровыми нагрузками, скачками температур, ударами и воздействиями окружающей среды.
Количество преимуществ существенно превышает число недостатков, поэтому материал всё чаще заменяет пластик, стекло или металл.
Как составить чертёж
При составлении чертежа теплицы важное значение имеет схема внутреннего размещения растений.

Поэтому первым делом нужно распределить культуры внутри.
Теплицы различают по форме каркасной конструкции и материалам изготовления. По форме каркаса постройки могут быть:
- с односкатной крышей;

- в форме арки (с крышей в виде полукруга);

- в форме домика или шатра (с двускатной крышей).

Для возведения каркаса можно использовать такие материалы:
- деревянные бруски;
- пластиковые профили;
- трубы из ПВХ;
- металлические профили.
Чертёж парника будет зависеть от типа культур, которые планируется выращивать. Помимо этого, играют роль и размеры конструкции. Для поликарбоната нет каких-либо ограничений в выборе форм. Материал с лёгкостью можно смонтировать под углом или изогнуть.
В процессе создания чертежа нужно учитывать вид фундамента парника, который будет зависеть от типа почвы на участке.
На схеме нужно точно указать форму и размеры конструкции, а также количество строительных материалов:

Необходимо придерживаться определённой последовательности и учитывать такие нюансы:
- Начинать составление схемы рекомендуется с основания конструкции. После этого обозначается каркас и покрытие.
- Выбор места для парника. Важно выбрать открытое место, где есть прямое попадание солнечных лучей. Не допускается размещение теплицы возле высоких заграждений, деревьев или зданий. Лучше всего размещать постройку с запада на восток. В таком случае урожай будет получать максимальное количество света солнца.
- Учёт нагрузок. Во время составления проекта надо учитывать будущие нагрузки на каркасную конструкцию.
- Расчёт расстояния между грядками. Важно учитывать, что несколько см уйдёт на строительные материалы.
- Нужно рассчитать дополнительные створки. Следует указать число окон и дверей и рассчитать нужное количество строительных материалов.
Составить схему для будущего парника возможно самостоятельно, однако важно учесть все нюансы.
Например, древесина боится влаги, которой в конструкции образуется очень много.
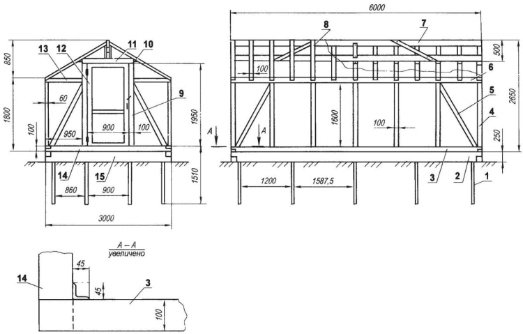
Стоит заметить, что лучше всего изготавливать каркас из трубок. Он обойдётся дороже, но прослужит намного дольше деревянного изделия.
Пример чертежа можно увидеть на изображении:

Если планируется возвести сезонную теплицу, в схеме надо предусмотреть возможность её быстрого демонтажа.
Полезные советы по выбору строительного материала
Чаще всего для изготовления парников используется сотовый поликарбонат.

Такие листы являются прочными и пропускают около 90% света. Материал практически не пропускает ультрафиолет.
Листы могут иметь следующую структуру:

Инструкция по тому, как правильно выбирать поликарбонат для парника:
- Прежде всего надо подобрать толщину листов. Параметр следует выбирать исходя из нагрузки от ветра, изгиба и числа стоек. Для уличного использования минимальная толщина материала составляет 8 мм.
Листы меньшей толщины стоят дешевле, однако сэкономить не получится. В случае использования тонкого поликарбоната понадобится делать учащённый шаг обрешётки, что влечет за собой дополнительные расходы.
Для разных целей следует применять материал различной толщины:
- листы 4 мм используются для сооружения навесов и небольших парников;
- поликарбонат толщиной 6 мм можно использовать для изготовления маленьких теплиц;
- толщина 8 мм подойдёт для среднеразмерных парников;
- с помощью листов 10 мм можно выполнить сплошную обработку крупных вертикальных оснований;
- материал толщиной 16 мм позволяет обрабатывать крыши над крупными пролётами, используется в больших комплексах.
В процессе выбора стоит учитывать, что оптимальная плотность для установки парника составляет 800 гр/м2.
- Плотность — это вес материала на 1 м2 листа. Значение влияет на прочность. Его можно проанализировать и путём визуального осмотра: если материал упакован, то он должен размещаться ровно, при этом на листах не должно быть волн или изгибов. Если стопа деформирована, то материал лучше не использовать.
- Перед покупкой нужно изучить надписи на плёнке. Часто под маркой мировых изготовителей продавцы предлагают облегчённый и бюджетный поликарбонат. Маркировка должна быть соответствующей.
Рекомендации, которые помогут приобрести качественный материал:
- В продаже можно найти много некачественного поликарбоната. Рекомендуется отдавать предпочтение маркам известных брендов.
- Облегчённый поликарбонат можно использовать в странах с тёплым климатом. Материал с трудом выдерживает температурные перепады и имеет небольшой срок службы.
- Стоит обратить внимание на производственные стандарты. Если на упаковке написано, что материал имеет толщину 4 мм, а по факту толщина 3,5 мм, то не следует покупать такое изделие.
Вес обыкновенных листов составляет 10 кг.
Качественные листы имеют обозначения на основании, которые свидетельствуют о нанесении специальной плёнки для защиты от солнечных лучей

При изгибе качественный материал не должен трескаться.
Специалисты советуют проверять документы на поликарбонат. Упаковка должна быть качественной. Листы размещаются в полиэтиленовой плёнке. На полиэтилене не должно быть неровностей.
Строительство своими руками
Теплица с каркасом из профильных трубок является надёжным и долговечным сооружением. На железную трубу легче всего крепить поликарбонат. Стыки деталей скреплять гораздо проще, чем в случае работы с круглой трубкой водопровода.
Для рамы будет нужна мощная труба, поэтому рекомендуется использовать профиль 40х20 мм:

Для горизонтальных связок между рамами подойдёт труба сечением 20х20 мм:

Металлопрофиль является дорогим материалом, поэтому расчёты нужно делать так, чтобы на одну раму приходилась одна труба из стали. Стандартная длина трубы — 6,05 м.
Метод ручной гибки трубы, которая наполнена песком, является сложным. Помимо того, способ не сможет дать идеальной геометрии арки.
Поэтому для экономии финансов и времени рекомендуется изготавливать двускатное изделие. Другой вариант — заказывать услуги порезки на предприятии.
Сооружение фундамента
Прежде всего понадобится определиться с фундаментом. Есть разные варианты. Самым простым и бюджетным вариантом является фундамент из бруса сечением 50х50 мм.
Последовательность действий по возведению будет такой:
- Прежде всего понадобится выровнять участок и тщательно его утрамбовать.
- Выполняется монтаж опорных элементов по размерам теплицы.
- На опорах фиксируется брус.
- Деревянные детали понадобится обработать антисептическим средством.

Недостатком основания является то, что его период службы составляет приблизительно 10 лет.
Более долговечным вариантом является основание из кирпича. Его срок службы — более 50 лет. Кирпичи укладываются на подушку из бетона и цемента. Кладку следует делать в несколько рядов. Число рядов зависит от размера теплицы. Под стандартную конструкцию 3х6 м хватит 2–3 ряда кирпича.
Наглядно процесс изготовления можно увидеть на изображении:

Обязательно установить в основание крепежные элементы. Это может быть любая арматура или деревянный брус.
Наиболее предпочтительный фундамент — мелкое монолитное основание глубиной в 30 см. Перед заливкой бетонного раствора понадобится заложить по периметру анкерные болты для фиксации профильных трубок:

- После того как бетонный раствор схватится, к закладным элементам надо приварить трубку 40х20 мм. Деталь будет надёжной опорой для фиксации рам каркасной конструкции.
- Перед сборкой каркаса торцевые части понадобится закрыть поликарбонатом. Необходимые действия:
- На твёрдом основании ножом по линейке надо отрезать 3 элемента 2х2,1 м.
- Затем торцевую раму надо уложить горизонтально так, чтобы окна и двери могли открываться вверх.
- На основу торца надо положить лист 2х2,1 м основной частью вверх.
- С внутренней стороны плёнку для защиты от солнечных лучей надо демонтировать.

В результате соты должны располагаться параллельно оси открывания окна и перпендикулярно основе торца.
- Лист нужно выровнять по отношению к линии крайней части двери и фундамента парника. Первым листом следует полностью закрыть дверь, половину торца и окно.
- Как только лист будет установлен, его нужно зафиксировать самонарезающими винтами с прессшайбами.

- Излишки материала после фиксации надо обрезать ножом по дуге торцевой части.

- Далее второй лист укладывается встык с первым так, чтобы основная часть оказалась обращённой кверху.
- При помощи линейки и ножа поликарбонат понадобится прорезать в средней части рамы двери так, чтобы образовался нахлёст при закрытии.
- Чтобы дверь плавно открывалась, следует вырезать окошки и углубления шарниров.

- Таким же способом закрывается второй торец.
Крепление поликарбоната к каркасу
После изготовления каркаса можно приступать к установке поликарбоната. Пошаговая инструкция по фиксации листов:
- С помощью рулетки понадобится выполнить замер внешней образующей арки.
- После того как будет получен результат, нужно отрезать лист таких же размеров. Важно предусмотреть запас в 10 см.
- Число листов определяется исходя из габаритов парника. К примеру, для конструкции длиной 4 м необходимо 2 листа, а для изделия длиной 6 м — 3 листа.
- На дуги поликарбонат нужно устанавливать лицевой стороной вверх так, чтобы крайняя часть листа выступала на 5 см над торцом.
- Материал фиксируется самонарезающими винтами по образующему основанию дуги.
- Таким же методом понадобится закрыть противоположную часть каркасной конструкции.
- Листы крепятся встык. Длина листа, который необходим для покрытия крыши парника, должна быть на 10 см длиннее трубы, образующей скат. Это нужно для того, чтобы получился свес карниза.
- На стыке конька крыши теплицы в большинстве случаев накрывают стандартным металлопрофилем для черепицы. Деталь можно закрепить самонарезающими винтами к двум продольным связкам.
- Если листы будут крепиться болтами, то понадобится заранее подготовить отверстия. Они должны быть больше диаметра крепежных элементов и размещаться на расстоянии более 4 см от края.
- Когда поликарбонат будет закреплён, можно снять защитную плёнку верхнего слоя. На данном этапе нужно выполнить герметизацию торцевых частей силиконовым герметиком.

Другой вариант — установка защитных профилей. Далее навешивается фурнитура для окон и дверей.
Для освещения рекомендуется использовать лампочки, дающие белый свет.
Теплица из труб своими руками
Труба — это многофункциональный материал, который подходит для изготовления самых разных конструкций. К ним относятся и теплицы. Чтобы сделать теплицу из труб своими руками, специальных навыков не требуется.
Но если будете использовать профильные трубы, то самодельная конструкция может оказаться сложной для тех, у кого нет опыта.
Зато самодельные теплицы из пластиковых труб, являются относительно недорогими, которые можно сделать за выходные. В этой статье представлено несколько проектов, не только с использованием труб ПВХ, но также показано, как сделать теплицы из профильных труб, труб ПНД, арматуры, которые помогут максимально эффективно использовать ваши домашние культуры.
Простая теплица своими руками
Если вам нужна недорогая и простая в изготовлении теплица, это самый подходящий вариант. Размеры1,5 х 3 м, но ее можно уменьшить или увеличить, чтобы соответствовала размеру, который вам нужен. Сборка теплицы разбита на несколько шагов, чтобы вам было легче проследить этапы работы. Это настолько простой проект, что даже пара детей может сделать теплицу практически без присмотра взрослых.
Вся сборка займет менее 20 минут от начала до конца. Как сделать эту простую теплицу из пластиковых труб смотрите ниже на пошаговых фото.
Теплица своими руками из дерева
Особенности
Такой элемент, как теплица, обязательно должен быть на любом дачном участке. Сделать ее своими руками может кто угодно, заслуженно гордясь полученным результатом, а кроме того, индивидуальная работа позволяет не приспосабливать к готовым стандартам размеры постройки.
На рынке есть немало образцов, в том числе из поликарбоната, но при всех достоинствах этого материала он недостаточно теплый и стоит слишком много.
До начала работы нужно обратить внимание на:
- точное место расположения;
- уровень освещенности;
- необходимую площадь;
- тип материала;
- финансовые средства, которые можно потратить на строительство теплицы.

Срок службы качественной древесины достаточно долгий, а приобрести подходящий материал можно во всех строительных магазинах. Или даже применить оставшиеся от прежних плотницких и слесарных работ материалы.
Все работы легко выполнить своими руками без каких-то специальных и особо сложных инструментов.

Типы конструкций
Односкатные теплицы могут быть как пристроенными к основному зданию, так и автономными сооружениями. Распознать двускатные парники не составляет труда – они все прямоугольные и уклон кровли превышает 30 градусов.
По мнению специалистов, формат арки не только изящен внешне, но и создает оптимальные условия для выращивания растений.
Что касается многоугольных круглых конструкций, привлекательный дизайн не скроет от опытного взгляда необходимость оборудовать дополнительные форточки, чтобы улучшать проветривание внутри.
Как нетрудно убедиться уже из этой информации, виды перекрытий у теплиц бывают самыми разными по исполнению. И они существенно отличаются друг от друга. Так, односкатные решения рекомендуются в тех случаях, когда пространства на участке остро не хватает и нужно использовать его как можно рациональнее.
Целесообразно ориентировать скат кровли на юг, хотя в зависимости от индивидуальных соображений строители могут выбрать и другой вариант.
Односкатные крыши покрываются преимущественно стеклянными или пластиковыми элементами.

Достаточно качественным и оригинальным вариантом деревянной теплицы является сборка по Митлайдеру.
Она отличается от классических парников оригинальным обустройством вентиляции. Верхний сегмент крыши оборудуется фрамугами, помогающими уходить теплому воздуху. Приток свежего воздуха происходит сквозь проемы дверей либо специальные окошки, расположенные ниже кровельных деталей.
Каркас митлайдеровской теплицы очень крепок, потому что балки устанавливаются чаще обычного, дополняются распорками.

Подобное решение надежно защищено от ветра и града, а если нужно, конструкцию можно будет переместить на новое место, если использовать при постройке болты либо шурупы. Створки, предназначенные для вентиляции, направлены на юг, чтобы исключить воздействие холодных северных ветров.
Основные конструктивные части любых теплиц по Митлайдеру делают деревянными, это препятствует образованию конденсата.
Рассчитывая потребность в дугах, нужно учитывать, что подобные парники имеют крупные габариты:
- Длина – 12 м;
- Ширина – 6 м;
- Высота – 2,7 м.

Подобное решение позволяет поддержать оптимальный климат в парнике и снизить перепады температуры по сравнению с изменениями во внешней среде.
Теоретически можно уменьшать величину конструкции, сохранив только базовые пропорции. Но придется тогда смириться с непредсказуемыми скоростями нагревания и охлаждения. Кровля должна иметь два ската, несходных по высоте.
Не менее часто создается парник в формате арки, также оснащенный двухуровневой кровлей.
Ставить теплицу по схеме Митлайдера можно только на ровном солнечном месте. Если приходится работать на склоне, нужно сформировать террасу с укрепленными уступами. Каркас делается из бруса сечением 10х10 см, длина центральных стоек равняется 305, а боковых – 215 см. При сборке низовых обвязок и распорок на углах применяют доски величиной 2,5х20 см.
Коньки и направляющие для балок должны делаться из деревянного бруса.

- Хотя рамы парников по Митлайдеру довольно надежны, рекомендуется первоначально делать фундамент, чтобы сооружение встало в одном месте на долгие годы. На периметр сооружения расставляются брусья длиной 3 м и сечением 10х10 см, угловые стыки фиксируются саморезами.
- Сразу после этого дополнительно выверяются диагонали в прямоугольнике, которые должны быть равны. Все основание подбивается колышками, удерживать их помогут саморезы. Стены на торцах делаются из бруса сечением 5х7,5 см, разрыв между ними – 70 см.
- В митлайдеровской схеме ставится пара окон, которые удерживаются на рамах фиксаторами и навесами. При сборке дверей применяют брус 5х5 см. Основа дополняется клиньями величиной 7 мм, их нужно поставить на углах по одному и попарно там, где соединяется каркас двери с бруском. Когда очередь доходит до кровли, северный скат обязательно делают круче южного с возвышением 0,45 м.
- Подвидом двускатной теплицы считается «голландка», имеющая наклонные стены. С ее помощью легко расширить территорию для посева растений. Сделать круглую деревянную теплицу довольно тяжело, потому что деталей будет много, а мест стыковки еще больше.
- Внешний вид конструкции, безусловно, эффектный, но чтобы рационально использовать территорию, понадобится делать грядки фигурной конфигурации или ставить стеллажи. Зато весь световой день уровень инсоляции будет одинаковым.
Полукруглый формат предпочтителен, потому что он:
- универсален;
- легко обслуживается;
- укрыть растения ввиду исключения углов будет легко;
- свет распределяется однородно по всему пространству;
- сопротивляемость ветровой нагрузке окажется очень высокой.

Арочные теплицы собрать из дерева никак не получится просто потому, что она не имеет достаточно высокой эластичности. Заглубляемые в землю теплицы, у которых выше уровня земли одна крыша, часто имеют деревянные стропила. Подобное решение требует основательной антисептической пропитки и регулярной окраски.
На летние месяцы покрытие полагается снимать, постройка такого рода пригодна лишь для подготовки рассады.

Самостоятельное строительство
До установки теплицы нужно проанализировать не только уровень освещенности на участке, но и то, насколько далеко будет до источника воды, каков рельеф местности, уровень ветровой нагрузки и тип грунта. Не разобравшись с этими ключевыми моментами, нет никакого смысла двигаться дальше.
Сооружения с одним скатом ориентируют по оси восток-запад, с двумя – по оси север-юг.
Нежелательно размещать теплицу непосредственно рядом с деревьями, с заборами большой высоты. А вот рядом с кустарниками, не становящимися преградой для света, строить парник вполне оправданно. Строить теплицу обязательно нужно с усиленной защитой от ветра. Что касается размеров постройки, универсальных рецептов нет.
Нужно ориентироваться на:
- количество урожая;
- общую площадь территории;
- вид выращиваемых культур;
- материальные возможности.

Большинство садоводов ограничивается парниками величиной 3х6 м, она позволяет обеспечить баланс между занимаемым пространством и общим количеством плодов.
Поскольку далеко не все растения могут быть выращены в одном помещении, стараться сделать постройку крупнее нет необходимости.
Если планируется обогревать теплицу, нужно с самого начала положить трубы под грядками в полном порядке. Для изготовления фундамента рекомендуется брать брус сечением 10х15 см.
Нельзя строить теплицу без фундамента, если:
- она вплотную подходит к жилым помещениям;
- грядки оказываются ниже высоты промерзания грунта;
- строительство будет вестись на склоне холма;
- требуется придать максимальную крепость сооружению.
Процесс изготовления
Рабочий процесс при создании теплицы всегда строится по единообразной схеме, независимо от того, делают ли ее своими руками или нанимают специалистов дополнительно.
Последовательность шагов такова:
- создание фундамента;
- закрепление несущего бруска;
- подготовка каркаса;
- обустройство стропил;
- монтаж коньков и ветровых досок;
- подготовка форточек;
- создание входа;
- внешняя обшивка декоративными материалами.

Построить теплицу из дерева нельзя, если не подготовлена как следует площадка для работы, она недостаточно крепкая и устойчивая. Почву выравнивают, на периметре участка выставляют маячки, после чего роют траншею 10 см глубиной и 0,2 м шириной. Большинство теплиц встает на фундамент из кирпича либо железобетона. Траншею оборудуют опалубкой и заливают слоем бетона.
Укладывать кирпич можно только после окончательного высыхания залитого слоя.

Что касается локации теплицы, то, по мнению опытных садоводов, лучше всего приблизить ее к дому. Часть начинающих строителей пытается сделать разрыв между ними побольше, чтобы не создавать преграду и не занимать самую перспективную территорию в центре участка.
Но практика показывает, что отдаленные от жилых построек парники обслуживать тяжелее, усложняется и удорожается подготовка коммуникаций. Желательно выбирать место максимально пологое, чтобы упростить работу.
Недопустимо браться за изготовление теплицы на болотистом или песчаном участке, поскольку дерево быстро будет разрушено накапливающейся водой. Глинистую почву уплотняют, добавляя гравий, поверх которого насыпается плодородный чернозем. При выборе ориентации по сторонам света ориентируются не только на освещенность, но и на «розу ветров», чтобы весной и осенью меньше выдувало тепла изнутри.
Строительство может помочь сократить ветровую нагрузку за счет формирования изгороди либо пристраивания теплицы непосредственно к стенам домов.

Нельзя ставить каркас напрямую на почву, даже в самой сухой местности древесина быстро сгниет.
Чтобы защитить теплицу от такого финала, нужно использовать столбчатый фундамент, который делается на основе:
- труб, изнутри наполняемых бетоном;
- фрагментов свай;
- кирпичей (возможно даже боя);
- железобетонных изделий.

Столбы можно поставить самому, выдерживая расстояние 100-120 см, после чего укладывается рама из брусьев.
Если обвязка не предусмотрена, делать столбы придется под всеми стойками. Альтернативой столбчатому основанию выступает ленточное, при подготовке которого нужно освободить площадку от накопившейся грязи и основательно разровнять. Стандартная ширина лент колеблется от 300 до 350 мм.

На дно траншеи (0,3 м) насыпают просеянный песок толщиной 100 мм. Деревянные доски 20 мм в толщину позволяют сделать опалубку, которая должна возвышаться на 0,25 м над почвой. Для соединения боковых деталей применяются стяжки и укосины. Линия для заливки бетона определяется по гидравлическому уровню.
Стандартный арматурный пояс сооружается из стального прута диаметром 0,5-0,6 см при шаге решетки 0,2 м.
Когда траншея залита бетоном, его выравнивают строго по ранее проделанной разметке. Потом фундамент оставляют в покое на 14-21 день. Если стоит жаркая погода, его регулярно поливают водой, чтобы избежать растрескивания. Как только настанет время снять опалубку, производится обработка при помощи гипсовой мастики либо рубероида, чтобы повысить стойкость к влаге.
Потом строится самодельная теплица под пленку или с рабочей поверхностью из поликарбоната.


Древесина обязательно пропитывается антисептическими смесями. Обвязка должна делаться из цельных элементов. Если пустить в ход отрезки, прочность будет неудовлетворительной.
Деревянные детали для боковых стен формируются по таким критериям:
- длина – 540 см;
- высота отдельной стойки – 150 см;
- число перекладин на отдельной стороне – 9.

Для превращения разрозненных деталей в монолитное полотно рекомендуется использовать пазы. Чтобы соединять стены со стропильной системой, потолочными лагами и дверными блоками, применяются саморезы и уголки из металла.
В большинстве случаев достаточно оказывается стропил длиной 127 см, и лишь если пользоваться теплицей будут люди высокого роста, этот параметр увеличивается до 135 см. Все эти показатели рассчитаны для деревянных парников со сторонами 6 м, при необходимости построить иное сооружение они пересчитываются заново.

Если исходить из заявленных величин, суммарная длина пары боковых стоек и пары ног для стропил окажется примерно 580 см, то есть не появится отходов обработки древесины. Завершающим этапом работы закономерно оказывается установка кровли и двери.
Раньше всего монтируют стропильные пары, для выполнения коньков кровель и ветровых досок применяют цельный брус. Потом занимаются подготовкой рамы и созданием каркаса для форточек.
Есть более сложный вариант строительства теплицы. Стандартный фундамент в таком случае всегда ленточный, оптимальные размеры – 360х330 см, высота центрального прохода 250 см. Технология подготовки основания та же самая, что и раньше. Когда оно готово, собираются боковые, передние и задние фронтальные стенки.
Боковины делают из семи стоек величиной 85 см, к которым присоединяют параллельно обвязки по 3,59 м каждая, для удержания используют саморезы.

Кормовая стенка делается из шести опор и пары обвязок по 310 см. Как только стенки собраны, их устанавливают на фундамент и прикручивают друг к другу с помощью анкерных болтов. Для соединения более мелких деталей в ход идут уголки и саморезы. Заготовки кровли на ровном твердом основании стягивают аналогичными саморезами, но только через монтажные пластины.
Нужно внимательно оценить прочность конструкции и последовательно присоединить ее фрагменты к собранному каркасу.
Для установки крыши сначала используют коньковый брус, длина которого составляет 349 см. Потом подготавливаются стропила (снизу вверх). Их части соединяют, используя накладки из фанеры. Каркас окрашивается и пропитывается защитными смесями. Обязательно нужно утеплить конструкцию, для этого используют пенопласт либо минеральную вату.
Сделать теплицу более защищенной от холода можно, если оборудовать вход своеобразным тамбуром, где не будут выращиваться растения, но за счет дополнительного слоя воздуха снизится потеря тепла.

Утепление пенопластом подразумевает раскладку его листов вдоль стен (с внутренней стороны). Альтернативный материал – пузырчатый пластик. Знатоки рекомендуют заворачивать пенопласт в полиэтиленовую пленку, тогда даже сырость не будет страшна.
Гарантировать максимальный срок службы теплицы нельзя, если она не подготовлена как следует к применению.
Не стоит полагаться на красивый внешний вид бруса и досок, даже если они куплены в солидном магазине или на лесопилке. Непременно следует пройтись щеткой, чтобы не оставалось грязи и слоя песка, вымыть материал и дождаться его высыхания. Затем дерево очищают наждаком средней фракции либо влажным абразивом. Если на покрашенной теплице возникли трещины, их нужно немедленно закрашивать, чтобы избежать гниения постройки.
Также необходимо уделить внимание очень важным моментам – освещению и отоплению в тепличном комплексе. Точная потребность в освещении для каждой культуры и даже различных сортов неодинакова.

Все, что выращивается в обычном огороде, требует подсветку в той или иной мере, особенно это относится к перцам, баклажанам и другим пасленовым. Если какая-то культура призвана давать цветы или плоды, света для нее нужно больше, чем для тех, в которых ценятся питательные листья.
Вопреки распространенному мнению, монохромные лампы использовать нельзя, потому что они делают урожай безвкусным.
Нужно подсвечивать растения всем спектром сразу. Для выгонки отдельных культур можно применять лампы накаливания, которые подвешиваются на 0,5 м выше самих растений.
Люминесцентная энергосберегающая подсветка – самая лучшая по качеству и стоимости, особенно в небольшом помещении.
Но независимо от выбранного типа ламп стоит получить консультацию у электрика. Если провод будет уложен в траншею, минимальная глубина ее составляет 0,8 м, причем пересечения с дренажными системами недопустимы. Исполнение всех электроприборов, проводки и соединений должно быть рассчитано на условия повышенной влажности и температуры.

- О специальном отоплении нужно заботиться, если предстоит организовать зимний сад либо выращивать свежую зелень в самые холодные месяцы. Не всем так «везет», что прямо под теплицей расположена теплотрасса, но есть ряд обходных путей, которые призваны решить эту проблему.
- Так, солнечные аккумуляторы представляют собою неглубокие ямы, устланные теплоизоляционным материалом, поверх которого располагается влажный песок крупной фракции. Воздушное отопление предполагает монтаж стальных труб, один конец которых помещается в костер или уличную печь.
- Если избрана схема с периодическим отоплением при помощи газовых баллонов, то помимо соблюдения требований безопасности, нужно будет выделить особое место для подогревающего котла и позаботиться об усиленной вентиляции. Ведь перенасыщение углекислым газом и водяными парами скверно скажется на любых растениях.

Пластиковые теплицы своими руками
Построить арочную теплицу из пластиковых труб своими руками не составит труда. Весь процесс монтажа включает 5 этапов:
- Расчистка и выравнивание участка по уровню.

- Установка фундамента из бруса толщиной 10 мм.

- Монтаж каркаса из труб.

- Установка торцов, дверей и форточек.

- Обшивка укрывным материалом.

Закладка фундамента
- Легкий каркас теплицы из пластиковых труб не требует ленточного основания. Достаточно будет обустроить фундамент из бруса шириной 10*10 см.
- Перед укладкой бруса необходимо разровнять участок и произвести разметку. По размерам необходимо выпилить и плотно скрепить брус саморезами в раму.
- Установить раму по разметке на угловые кирпичи или неглубокую траншею.

Важно!
Дополнительную фиксацию рамы обеспечат вбитые по ее углам металлические пруты длиной 50 см. Выступающая на поверхность часть должна соответствовать высоте фундамента.
Каркас теплицы из пластиковых труб
- По длине основания парника вбивают металлический опорный стержень с шагом 0,89 м на уровне 40 см от земли.

- В стержни надевают дуги для теплицы из ПВХ трубы и крепят к основанию стальными скобами при помощи саморезов.

- Чтобы дуги не разъезжались, их временно фиксируют доской 5*2 см.

- Для придания жесткости каркасу крепят поперечные перекладины по 3 шт. с каждой стороны и на крыше в центре.

- Устанавливают торцы теплицы, которые сооружают по вышеуказанной схеме. На торцах устанавливают лутку для двери.

Установка дверей и окон
- После монтажа каркасу необходимо установить диагональные ребра жесткости по схеме, двери и форточки.
- Ребра устанавливают по диагонали в угловых сегментах.
- Дверь и форточку монтируют на торцевых сторонах внутри лутки.
Обшивка
Установленный каркас необходимо покрыть пленкой или поликарбонатом. Стекло для теплиц из пластиковых труб не применяется.
Пленкой накрывают парники для выращивания рассады. Летом ее легко снять.

- Обшивка для теплицы из полиэтиленовой пленки обладает достоинствами: невысокой ценой и простой монтажа. Пленка хорошо пропускает солнечный свет.
- Недостатком является низкая прочность и недолговечность. Под воздействием УФ лучей пленка разрушается на второй год эксплуатации. Она не защитит от сильных морозов.
Виды креплений полиэтиленовой пленки:
- отрезок шланга 10 см разрезают вдоль и одевают на трубу, фиксируя полиэтилен;
- отрезком трубы ПВХ 10 см крепят пленку аналогично;
- пластиковые зажимы;
- канцелярские зажимы.

Теплицу из пластиковых труб и поликарбоната обустраивают, если предполагается круглогодичное ее использование.

Поликарбонат обладает рядом достоинств:
- высокая пропуская способность света;
- стойкость к УФ излучению;
- прочность к механическим воздействиям и погодным условиям;
- сотовый поликарбонат хорошо задерживает тепло;
- простота монтажа.
Облицовка каркаса пленкой
- Монтаж пленки прост. Сначала производят облицовку торцов.

- Затем полиэтилен укладывают поверх дуг внатяжку. При помощи планок ее крепят к основанию саморезами или гвоздями.

- По длинам пленку подкапывают землей.

- Вырезают проемы дверей и форточек.

- Свободные концы подравнивают и подклеивают при помощи скотча. Места стыка также проклеивают.

Самодельная теплица из ПВХ труб и полиэтиленовой пленки готова.
Теплица из рам своими руками
Пошаговое руководство
Если планируется установка теплицы своими руками из оконных рам, а как построить её, непонятно, рекомендуем руководствоваться пошаговой инструкцией. Сооружение конструкции происходит за несколько этапов:
- создание эскиза будущего строения;
- проведение подготовительных мероприятий;
- устройство основы под объект;
- обустройство пола;
- сооружение каркаса;
- выполнение кровельных работ.
Подготовка чертежей
Разбираясь, как сделать теплицу из оконных рам, непременно требуется понимать, что сначала необходимо набросать эскиз будущего объекта. Можно применять готовые проекты, которых немало в интернете и они подробно описаны. При составлении своего собственного рисунка, обратите пристальное внимание на отдельные параметры:
- Соответствие габаритов оконных рам и требуемой высоты сооружения. Стены непременно делают выше параметра 180 см. Когда не удаётся срастить по высоте рамы, то требуется осуществить наращивание стен внизу иными материалами.
- Кровля. Нередко для возведения данной конструкции применяют брус либо металлический каркас. Связан такой выбор с тем, что эти материалы достаточно надёжные и плотные, способные в зимнее время выдерживать нагрузки от снега.

- Также при разработке чертежа данного строения важно проработать вопрос конька крыши. Его желательно размещать вдоль оси север-юг. Подобный подход позволит обеспечить правильное освещение в парнике.
Подготовительный этап
Приступая к реализации плана, требуется правильно выбрать площадку под объект. Для монтажа конструкции требуется выбирать максимально ровную поверхность, прекрасно освещаемую с каждой стороны солнцем. Обязательно площадка должна быть надёжно защищённой от постоянных ветров. Возле предполагаемого сооружения никак не должны размещаться строения иди деревья, которые будут затенять пространство, что негативно отразится на росте растений.
Если имеется растительность, то лучше выбрать иное место, либо пожертвовать насаждениями.
Почва, находящаяся под объектом, должна быть чистой и сухой. Специалисты рекомендуют, чтобы под чернозёмом располагалась песчаная подушка. Грунт под конструкцией необходимо утрамбовать, поскольку стекла в рамах тяжёлые. Особенно это важно при варианте строительства теплицы без заливки фундамента.

Выбирая площадку под парник, также важно учитывать расположение грунтовых вод. Необходимо найти место, где они находятся на глубине, превышающей 1,5 м. Когда почва на участке слишком влажная, не рекомендуют сооружать тяжёлую теплицу.
В подготовительный этап также входит подготовка оконных рам к дальнейшему использованию:
- потребуется их очистить от гвоздей, петель, крючков и задвижек;
- ошкурить древесину, убрав облицовочный материал (старые обои, самоклеящуюся бумагу);
- оголённое дерево желательно покрыть антисептиком неоднократно, затем – краской либо лаком, чтобы уберечь изделия от дальнейших разрушений.
Фундамент
Исследуя проблему, как сделать теплицу из оконных рам своими руками в домашних условиях, стоит подчеркнуть, что начинать работу придётся с обустройства фундамента. Здесь все зависит от ландшафта участка, типа грунта и конструктивных особенностей сооружения, основу выполняют, выбрав один из следующих вариантов:
- Ленточный вариант из бетона. Сначала копают траншею на глубину, соответствующую промерзанию почвы. Её ширина – примерно 20 см. Далее строят опалубку из досок. На дно насыпают песок, выполняя «подушку». Затем замешивают и заливают раствор бетона, целиком заполняя им опалубку. Если сразу все залить, впоследствии не будут развиваться трещины.

- Плотный брус. Для фундамента подойдёт сухой материал, предварительно обработанный специальным раствором, противостоящим гниению. Снимают верхний шар почвы, копают траншею, выдерживая размер бруса. Её дно со стенами закрывают рубероидом, чтобы защитить древесину от влаги. В траншею укладывают брусья, скрепляют их между собой, чтобы получился прямоугольник.
- Столбчатый вариант. Это самый простой вариант основания. Он требует минимальных затрат и небольшого времени. Сначала копают узкие ямы по углам, примерно полметра глубиной. Между ними (если теплица длинная) дополнительно делают ямки через 3 м. Ячейки ограждают опалубкой, внутрь насыпают песок, укладывают на него щебень, трамбуют, поливая водой. После этого остаётся только залить в опалубку бетонную смесь.
Обустройство пола
Рассматривая вопрос далее, как сделать теплицу из старых оконных рам, изучим тему обустройство пола. Сначала необходимо обеспечить дренирование, поскольку застаивание воды приведёт к тому, что деревянные рамы начнут гнить.
Чтобы обеспечить качественный дренаж, нужно вырыть траншею на глубину штыка лопаты. Её дно засыпают мелкой щебёнкой. Поверх насыпают песок, скрупулёзно утрамбовывая его.

Теплица из пленки своими руками
Лучшие методы крепления пленки к каркасу
Рейкой к деревянной основе
Рамы предварительно раскладываются, натягивается полотно. Это предупреждает провисание. Дощечки на основе дерева должны соответствовать ширине каркаса.
Длина реек — 100 мм, края планок закругляются. Потом покрываются каучуковым клеем и оборачиваются многослойно полиэтиленом. Рейки прикладываются к каркасу, сверлится отверстие.
Окончание работ предполагает крепление саморезами. Бруски обрабатываются, что исключает повреждение.

Рейка на торцах
Способ предполагает крепление пленки исключительно к торцам крытого сооружения. Стоит помнить, что неармированная пленка на гвоздях повреждается от порывов ветра. Такой способ снижает риск деформации пленки от ветра.

Зажимы, клипсы (для каркасов из арматуры, ПВХ-труб)
- Пленка закрепляется посредством зажимов. Их можно приобрести в специализированных магазинах. Они могут быть сделаны из труб на основе пластика.
- Трубки нарезаются, срезается боковая сторона. Края зажимов стачиваются, чтобы пленка не рвалась.
- Система фиксации предполагает ПВХ-клипсы для оцинкованного алюминия. Они защелкиваются в профиле совместно с пленкой.
- Система скрепляется на крышах, боковых стенах.
- Технология установки, демонтажа предельно понятная без деформации укрывного материала.

Профессиональные системы для фиксации пленочного материала
Можно применять такие виды сварки, как контактную, экструзионную, горячую. Для этих целей пользуются строительным феном, в который входят различные насадки.
Таким методом склеивание происходит довольно быстро, но подходит для пленки, имеющей низкую плотность.
Если предполагается сварка в больших объемах пленочных полотен, то пользуются специальным аппаратом. Принципы его работы довольно простые. Им удобно пользоваться.
Образуется два прочных шва. Специальные аппараты (фены) производятся для применения в промышленности и ручные варианты, которые отличаются меньшим весом.

Методы склеивания пленки
Одним из наиболее простых способов является склеивание листов полиэтилена, посредством двустороннего скотча. В качестве альтернативы применяется армированный скотч.
- Края пленки соединяются внахлест, сверху крепится скотч.
- Для надежного соединения полос полиэтилена их припаивают.
- С этой целью понадобятся 2 пластины из металла, защищающие полиэтилен от возможного сворачивания.
- Между ними следует расположить полосы пленки и сверху пройтись по ним паяльником.
Этот способ применяют чаще всего.

- Для склеивания пользуются обычным утюгом, температурный режим берется минимальный. Края деталей складываются внахлест.
- На месте предполагаемого шва кладется бумага или заменяется хлопчатобумажной тканью.
- Следует аккуратно провести утюгом. Склеивание будет надежным и герметичным.
- Склеить пленку позволяет расплавленный пластик, который осторожно наносится на стык изделия. Это один из подходящих способов для закрытия трещин и склеивания деталей незначительных размеров.
- Требуется надеть перчатки, чтобы не обжечь пальцы на руках.
Рекомендуется для склеивания использовать специальный конструкционный клей, содержащий метилакрилат. Полиэтилен размягчается и хорошо склеивается.
Клей характеризует токсичность, поэтому процедуру необходимо проводить вне помещения.
Теплица из бутылок своими руками
Подготовительный этап
Для того чтобы быть уверенным в конечном результате, необходимо правильно подготовиться к строительству. Во-первых, потребуется заготовить материал для изготовления каркаса. Конструкция теплицы из пластиковых бутылок такова, что основную нагрузку от давления снега, дождя и порывов ветра воспринимает каркас.
И чем больше будут размеры теплицы, тем толще и массивнее должна быть рейка.
Во-вторых, если высота теплицы или парника превышает ширину более чем на метр , то для надежного крепления на грунте необходимо делать полноценной фундамент. Иначе из-за высокой парусности и низкой жесткости теплицу из пластиковых бутылок может сложить порывом ветра, как карточный домик.

Если нет особого желания заниматься расчетами, продумывать схему ветровой нагрузки, то можно использовать в качестве прототипа любой реальный проект теплицы, в котором стены и кровля зашиваются пленкой или тонким листовым поликарбонатом.
Наиболее быстрый и теплый способ изготовления пластиковой облицовки еще называют шашлычным, по способу формирования «стеклянных бревен» или «шашлыков».
По сути, это десяток пластиковых бутылок с обрезанным дном, одетых на ивовый или ореховый прут. В результате получается легкая и прочная конструкция, как на фото.

На каркасе натягивают два разметочных шнура, которые помогут правильно установить заготовки. Каждое такое «бревно» ставят в стену с небольшим прижимом к предыдущему, это позволяет свести зазоры к минимуму. В нижней части каркаса теплицы прутья с пластиковыми бутылками фиксируют саморезами, в верхней части выступающую часть просто привязывают к верхней обвязке.
Можно сделать и наоборот, это не принципиально, главное, чтобы один из концов был зафиксирован по скользящей схеме.

После завершения сборочных работ «бревна» обязательно дополнительно перевязывают друг с другом и с деревянными стойками теплицы обычными шнурами. Такое решение делает стену более жесткой и не дает пластиковым бутылкам деформироваться с образованием щелей.


Полив в теплице своими руками
Подробно опишем устройство капельного полива в домашней теплице. Подача воды при этом методе осуществляется с помощью дозаторов-капельниц (форсунок). Простейший ее вариант – шланг с проделанными в нем 3-8-миллиметровыми отверстиями и заткнутым пробкой основным изливом.
Для обеспечения напора наполненный водой бак с опущенным в него шлангом поднимают на определенную высоту. В зависимости от требуемого напора она может быть от 1 до 10 м.

Капельный полив должен производиться только под корни растений. При подаче воды в междурядье влаги для корней будет недостаточно, и культуры будут развиваться хуже. Одновременно с этим уплотнится земля вокруг, понадобится рыхление.
Плюс влажная земля под лучами солнца будет перегреваться, что неблагоприятным образом скажется на росте.
Источником воды не обязательно должен быть водопровод или бочка. Им может служить скважина, колодец или водоем. Для этого в систему понадобится подключить насос.
Но в любом из случаев требуется обязательная установка фильтра – иначе трубопровод быстро забьется. При заборе воды из открытого источника (водоема) вначале необходимо монтировать фильтр грубой очистки, а лишь затем тонкой.
В остальных случаях достаточно единственного фильтра тонкой очистки.
Но все же для полива теплицы или огорода перед поливом воду лучше нагреть на солнце. Для этого используются емкости (бочки) подходящего размера. При поднятии ее на определенную высоту вода в систему будет поступать самотеком.
Насос понадобится только для забора воды при отсутствии водопровода или слабом его напоре.
Отопление теплицы своими руками
Варианты отопления теплицы
Ознакомьтесь с основными особенностями систем, наиболее часто использующихся для обогрева теплиц.
Паровой обогрев

- Этот вариант нужно рассматривать при наличии возможности подключения обогрева теплицы к системе отопления дома.
- Трубы, прокладываемые от дома к парнику, нуждаются в качественном утеплении. Запас мощности котла должен быть достаточным для обеспечения требуемого уровня обогрева и самого дома, и теплицы.
- В случае если длина трубопровода между домом и парником будет превышать 10 м, от использования подобной системы лучше отказаться.
- Также существует способ организации автономного парового обогрева. В данном случае котел устанавливается в помещении теплицы. К отопительному агрегату подключаются трубы и батареи, обеспечивается подача теплоносителя. В качестве теплоносителя традиционно используется вода.
- Для обеспечения принудительной циркуляции воды система, как правило, укомплектовывается соответствующим насосным оборудованием.
Воздушный обогрев

Для организации воздушного отопления применяется воздух, нагретый в топке специального котла. Такое отопление характеризуется минимальными денежными затратами на топливо и высокими показателями тепловой отдачи.

Примерно за полчаса после запуска оборудования температура воздуха в теплице может подняться на 20 градусов. Дополнительным преимуществом системы является отсутствие необходимости использования каких-либо промежуточных теплоносителей.
Воздушный обогрев лучше всего подходит для регионов с мягким климатом. В более суровых условиях рекомендуется применять комплекс из воздушного и парового обогревов.
Газовый обогрев

В такой системе тепло образуется в результате сгорания газа. Можно обустроить систему как посредством подключения к стационарно подведенному газу, так и путем применения топлива в баллонах.

В процессе работы системы происходит интенсивный забор воздуха из отапливаемого помещения, сопровождающийся выделением воды, углекислого газа и прочих отходов, представляющих опасность для человека и, конечно же, растений.
Ввиду этого, обустройство газового обогрева повлечет за собой дополнительные затраты на организацию вентиляционной системы.
Такое отопление хорошо подходит для небольших по площади теплиц. При использовании же его на больших площадях расходы и сложность обслуживания могут оказаться чрезмерно высокими.
Электрический обогрев

Современные электрические отопительные агрегаты позволяют обустроить эффективный обогрев теплицы без особых усилий.
Специалисты рекомендуют отдавать предпочтение инфракрасным лампам и обогревателям.
Среди главных преимуществ подобных приспособлений нужно отметить тот факт, что в процессе их работы происходит исключительно нагрев растений и грунта. Воздух же при этом не прогревается. Он постепенно получает тепло от нагретой земли. Это позволяет обустроить максимально эффективную и экономную систему отопления.

Современные системы укомплектовываются датчиками и регуляторами температуры, что дает широкие возможности для разделения теплицы на разные тепловые зоны и обеспечения максимально комфортных условий для каждой группы растений.
Печной обогрев

Основным агрегатом в такой отопительной системе является твердотопливный котел, работающий, как правило, на дровах либо угле.
Самая простая система печного обогрева включает в свой состав твердотопливный котел и дымоотводящую трубу, выходящую из помещения теплицы на улицу. Дополнительно можно укомплектовать систему трубами и радиаторами, что позволит организовать максимально эффективный и качественный обогрев.
Дымоход нуждается в регулярной очистке от продуктов сгорания топлива.
На рынке доступны как обычные дровяные печи, так и современные котлы длительного горения. Такие приборы не нуждаются в частой закладке топлива и расходуют его максимально эффективно.
Установка твердотопливного котла непосредственно в помещении теплицы приведет к пересыханию воздуха и почвы, в результате чего выращиваемые насаждения могут попросту погибнуть. Чтобы этого не случилось, при установке твердотопливного котла в теплице нужно обязательно оборудовать систему увлажнения воздуха. Обычно достаточно установить большую емкость с водой.

Печное отопление теплицы является наиболее популярным вариантом обогрева. Помимо этого, в обустройстве такой системы нет ничего сложного – с работой справится даже начинающий мастер. Также твердотопливный обогрев безоговорочно выигрывает у электрического отопления в плане стоимости.
Именно поэтому порядок организации отопления теплицы будет рассмотрен на примере печного обогрева.
Обустройство печного обогрева теплицы

Схема отопления теплицы:
- 1 – нагревательный котел;
- 2 – бак-термос;
- 3 – циркуляционный насос;
- 4 – реле-регулятор;
- 5 – регистры;
- 6 – термопара.
- Первый шаг. Подготовьте большую металлическую бочку. Окрасьте ее внутреннюю поверхность в два слоя – это обеспечит защиту от коррозии.
- Второй шаг. Сделайте в корпусе несколько отверстий. К одному из них вы подсоедините дымоход. Другие будут использованы для подключения крана и расширительного бака.
- Третий шаг. Сварите печку из листового металла и вставьте ее в подготовленную бочку.
- Четвертый шаг. Приварите к отверстию в бочке кусок трубы для подключения дымохода. Суммарная длина дымоотводящей конструкции должна составлять не менее 4-5 м.
- Пятый шаг. Установите на бочку расширительный бак. Будет достаточно емкости объемом 20-30 л. Бак можете купить или же сварить самостоятельно из листового металла.
- Шестой шаг. Выполните разводку труб по помещению теплицы. Разложите трубы по земле с шагом 120 см. Такое расположение отопительных элементов будет способствовать эффективному прогреву грунта в местах нахождения растительных корней.
- Седьмой этап. Установите насос для обеспечения принудительной циркуляции воды по системе.
Включите подачу воды и убедитесь в герметичности всех соединений. При обнаружении протечек, сразу же заделайте их.
Лишь после этого можно начинать тестировать печь и принимать отопительную систему в постоянную эксплуатацию.

Теплица своими руками чертежи
Лучшие проекты теплиц своими руками
В этом видео — пошаговое руководство, как сделать теплицу или парник своими руками:





























































